top of page
Kroki Çizimi
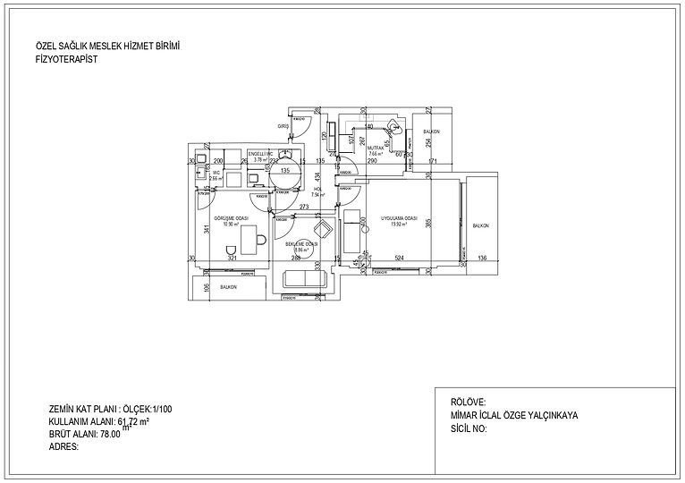
Eczaneler, Diş Hekimleri, Muayenehaneler ve Özel Sağlık Hizmet Birimleri için ( klinik psikolog, hemşire, hemşireliğe eşdeğer sağlık memuru, ebe, fizyoterapist, odyolog, diyetisyen, dil ve konuşma terapisti, podolog ve iş ve uğraşı terapisti ergoterapist ) hazırlanan 1/100 ölçekli ve onaylı kroki çizimi hizmeti almak için bize ulaşabilirsiniz.

bottom of page